欢迎来到河南省百意通起重机配件有限公司官方网站!
产品中心
|
联系我们
河南省百意通起重机配件有限公司
咨询热线:
13673521075
网站首页
关于集团
产品中心
新闻资讯
集团风采
资质荣誉
设备展示
联系我们
网站首页
关于集团
产品中心
新闻资讯
集团风采
资质荣誉
设备展示
联系我们
主营产品
新型起重机
冶金起重机
桥式起重机
门式起重机
梁式起重机
电动葫芦
全国服务热线
13673521075
产品中心
新型起重机
冶金起重机
桥式起重机
门式起重机
梁式起重机
电动葫芦
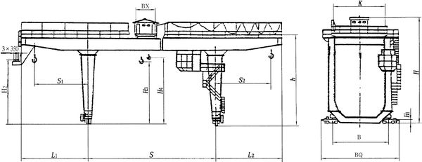
U型10~50/10吨双梁吊钩门式起重机
产品分类:门式起重机产品特点:...
产品介绍
工程案例
Copyright@2019-2026 河南省百意通起重机配件有限公司 ALL rights reserved
备案号:
豫ICP备19014096号-1
豫公网安备 41072802000759号
后台管理
返回顶部
13673521075
手机端打开网站